
3.5 מ"ש מטען כריית דיזל תת קרקעי
קיבולת דלי: 3.5 מ '
משמש להפעלת מנהור, הובלה והטלה, וחלים על מנהרות תת קרקעיות מעל 3.4 מ"ק 3.4 מ '.
סקירה כללית של מוצרים
שם מוצרים:
3.5 מ"ש מטען כריית דיזל תת קרקעי
דגם מס '::WJ -3
לִנְהוֹג:כונן דיזל
הסמכה:ISO
עומס מדורג: 6-9t
מצב הליכה:גלגלים
סוּג:מטעין בינוני

3.5m³ דיזל מתחת לאדמה מטען כרייה WJ -3הוא מעמיס מתחת לאדמה, כושר הטרם הוא 7T.
כל העיצובים של מוצר זה מקורם בסנדוויק.
מכונת האב -טיפוס היא Sandvik EJC145, המשמשת בעיקר לטעינה, הובלה והטלת סלעים. זה יכול להסתגל לסביבת העבודה התת -קרקעית הקשה ומתאים למנהרות ברוחב מעל 3.5 מ '.
פרמטר מוצרים
|
דלי סטנדרטי (ניתן להתאים אישית) |
3.5m³ |
|
מָנוֹעַ |
קאמינס B6.7 |
|
מומנט פלט מרבי |
700-950 N.m |
|
מהירות מדורגת |
2200 r/min |
|
עומס מדורג |
7000 ק"ג |
|
כוח הרמה מרבי |
120KN |
|
כוח חפירה מרבי |
115KN |
|
ציר (קדמי/אחורי) |
דנה 16D2149 |
|
ממיר מומנט |
LG |
|
הפצה |
דנה 32000 |
|
יכולת טחקה |
7, 000 ק"ג |
| ציר (קדמי) | 8800 ק"ג |
| ציר (אחורי) | 13200 ק"ג |
|
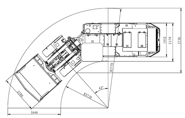
אורך (מצב הדלי הנמוך ביותר) |
8,800 מ"מ |
|
רוחב (מחוץ לגלגל) |
2,215 מ"מ |
|
גובה (כולל המונית) |
2,340 מ"מ |
|
דקה. הפיכת רדיוס (פנימי) |
2,730 מ"מ |
|
דקה. סיבוב רדיוס (חיצוני) |
5,770 מ"מ |
|
מקס. גובה השלכת (-40 זווית השלכת תואר) |
2,050 מ"מ |
|
מִשׁקָל |
21, 000 ק"ג |
רכיבי מפתח

מנוע דיזל של קאמינס
מנוע דיזל של קאמינס B6.7,
162KW, 2200 סל"ד, CN IV
LG Torgue Concerter


העברת דנה 32000
דנה
ציר 16D2149
(קדמי/אחורי)


מוצרים אורות גבוהים

יעילות גבוהה
- תכנון סימולציה קינמטית ליעילות עבודה גבוהה יותר
- תכנון אופטימיזציה דינאמית עבור כוח חפירה מוגבר.
ביצועים מעולים עמידים ללבוש של דלי
מיוצר על ידי צלחות עמידות ללבוש Hardox 500


שלדה אמינה
מיוצר על ידי פלדה מבנית בסגסוגת נמוכה, בעלת חוזק גבוה
Q345B
בקתה בטוחה ונוחה
תכנון ארגונומי לתחזוקה נוחה ופירוק;
מצויד במושבים סופגים הלם לנוחות גבוהה;
מוסמך ל- FOPS & ROPS למניעת גלגלים ונפילה, ומספק הגנה אפקטיבית לדיירים. "

תצוגה עליונה של מוצרים


תכונות מוצרים
בטיחות גבוהה
חופה בטיחותית שתוכננה על פי תקני הבטיחות של FOPS & ROPS.
מערכת בלמים של Posi-Stop מבטיחה בטיחות בלמים.
אמינות גבוהה
משאבות הידראוליות של פרמקו,
צינורות הידראוליים של איטון
שסתומי Rexroth.
רכיבי דנה Powertrain.
תחזוקה קלה
תחזוקה יומית יכולה להיעשות בגובה הקרקע;
מערכת שימון ומערכת בדיקת לחץ מרכזית
יישום מוצרים

פעולות כרייה ותחתית:
מעמיסים תת -קרקעיים נמצאים בשימוש נרחב במכרות ובפעולות תת -קרקעיות לחפירה, הובלה והובלת עפרות, פחם ומינרלים יקרי ערך אחרים.
מנהור ובנייה תת קרקעית:
מעמיסים תת קרקעיים מועסקים בפרויקטים של מנהור ופעילויות בנייה תת -קרקעית.
בטיחות במכרות ללא פחמים:
בסביבות מסוכנות כמו מוקשים ללא פחמים, נעשה שימוש במעמיסים תת-קרקעיים לחפירת פחם תוך הבטחת בטיחות במקום העבודה.
תגיות פופולריות: 3.5 מ"ש מטען כרייה תת קרקעי דיזל, סין 3.5 מ"מ 3 יצרני מעמיסי כרייה תת קרקעיים, ספקים, מפעל
אולי גם תרצה
שלח החקירה













